○串本町サンゴ台防災ヘリコプター場外離着陸場条例施行規則
平成23年9月15日
規則第15号
(趣旨)
第1条 この規則は、串本町サンゴ台防災ヘリコプター場外離着陸場条例(平成23年串本町条例第18号。以下「条例」という)の施行に関し必要な事項を定めるものとする。
(使用の届出)
第2条 条例第5条第3項による届出は、次に掲げる事項を記載した串本町サンゴ台防災ヘリコプター場外離着陸場使用届(別記第1号様式。以下「ヘリポート使用届」)によらなければならない。ただし、串本町サンゴ台防災ヘリコプター場外離着陸場(以下「ヘリポート」という。)に着陸しようとする場合において緊急を要するときその他特別の理由によりヘリポート使用届によることが困難なときは、電話又は電信によることができる。
2 前項ただし書の規定により届出をした者は、着陸後速やかにヘリポート使用届を町長に提出しなければならない。
3 前2項の規定は、届出事項を変更する場合について準用する。
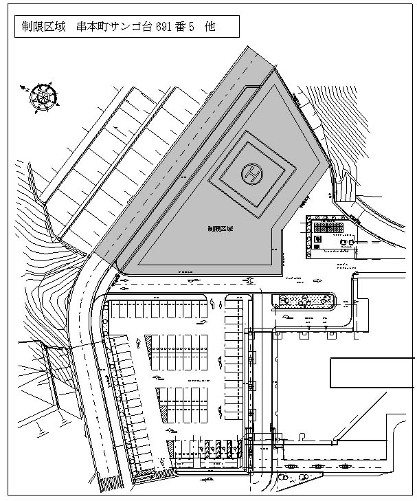
(制限区域について)
第6条 条例第10条に記載する制限区域は別表に示す区域とする。
(その他)
第7条 この規則に定めるもののほか、串本町防災ヘリポートの管理に関し必要な事項は、町長が別に定める。
附則
この規則は、平成23年11月1日から施行する。
附則(平成28年3月31日規則第27号)
(施行期日)
1 この規則は、行政不服審査法(平成26年法律第68号)の施行の日(平成28年4月1日)から施行する。
(経過措置)
2 行政庁の処分その他の行為又は不作為についての不服申立てに関する手続であってこの規則の施行前にされた行政庁の処分その他の行為又はこの規則の施行前にされた申請に係る行政庁の不作為に係るものについては、なお従前の例による。
3 この規則の施行の際、第1条の規定による改正前の串本町情報公開条例施行規則、第3条の規定による改正前の串本町個人情報保護条例施行規則、第5条の規定による改正前の串本町サンゴ台防災ヘリコプター場外離着陸場条例施行規則、第6条の規定による改正前の串本町職員の懲戒の手続及び効果に関する条例施行規則、第7条の規定による改正前の串本町職員の給与に関する規則、第9条の規定による改正前の串本町児童福祉法施行細則、第10条の規定による改正前の串本町保育所保育料の督促及び滞納処分に係る事務手続等に関する規則、第11条の規定による改正前の串本町障害児通所給付費等の支給に関する規則、第12条の規定による改正前の串本町老人ホーム入所措置費負担金徴収規則、第13条の規定による改正前の串本町身体障害者福祉法施行細則、第14条の規定による改正前の串本町放棄自動車の発生の防止及び適正な処理に関する条例施行規則、第15条の規定による改正前の串本町水道水源保護条例施行規則、第17条の規定による改正前の串本町都市計画下水道事業受益者負担に関する条例施行規則及び第18条の規定による改正前の串本町防災センター条例施行規則に規定する様式による用紙で、現に残存するものは、当分の間、所要の修正を加え、なお使用することができる。
別表(第6条関係)




